202 Katherine Drive
Sanford, NC
Status: Active
MLS#: 100564860
Description
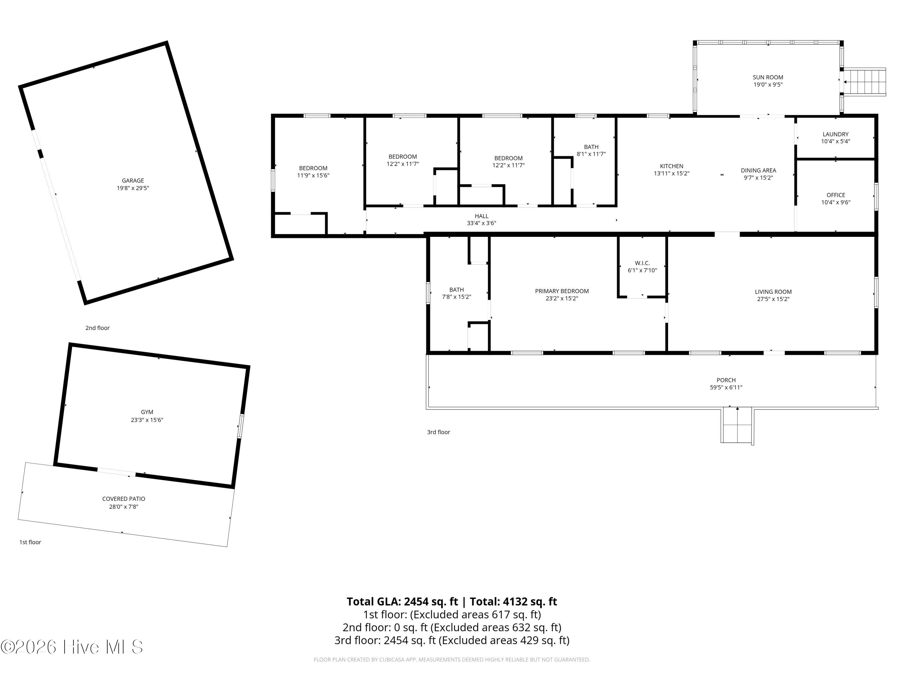
Over 10 acres, outbuildings, and an unbeatable location - this Sanford property delivers the space and flexibility you've been looking for. This updated 3 bedroom, 2 bath ranch home offers move-in ready living with both interior and exterior improvements already completed. Home is functioning as a 4 bedroom, however septic permit is 3 bedroom. Outside, the possibilities are endless with a detached garage and a separate outbuilding currently set up as a gym -perfect for work, hobbies, or your own mini farm setup. Conveniently located for an easy commute to Moore County, Sanford, and Fort Bragg, this property offers the perfect blend of privacy, space, and accessibility.
Contact Us Today!
"*" indicates required fields


















































