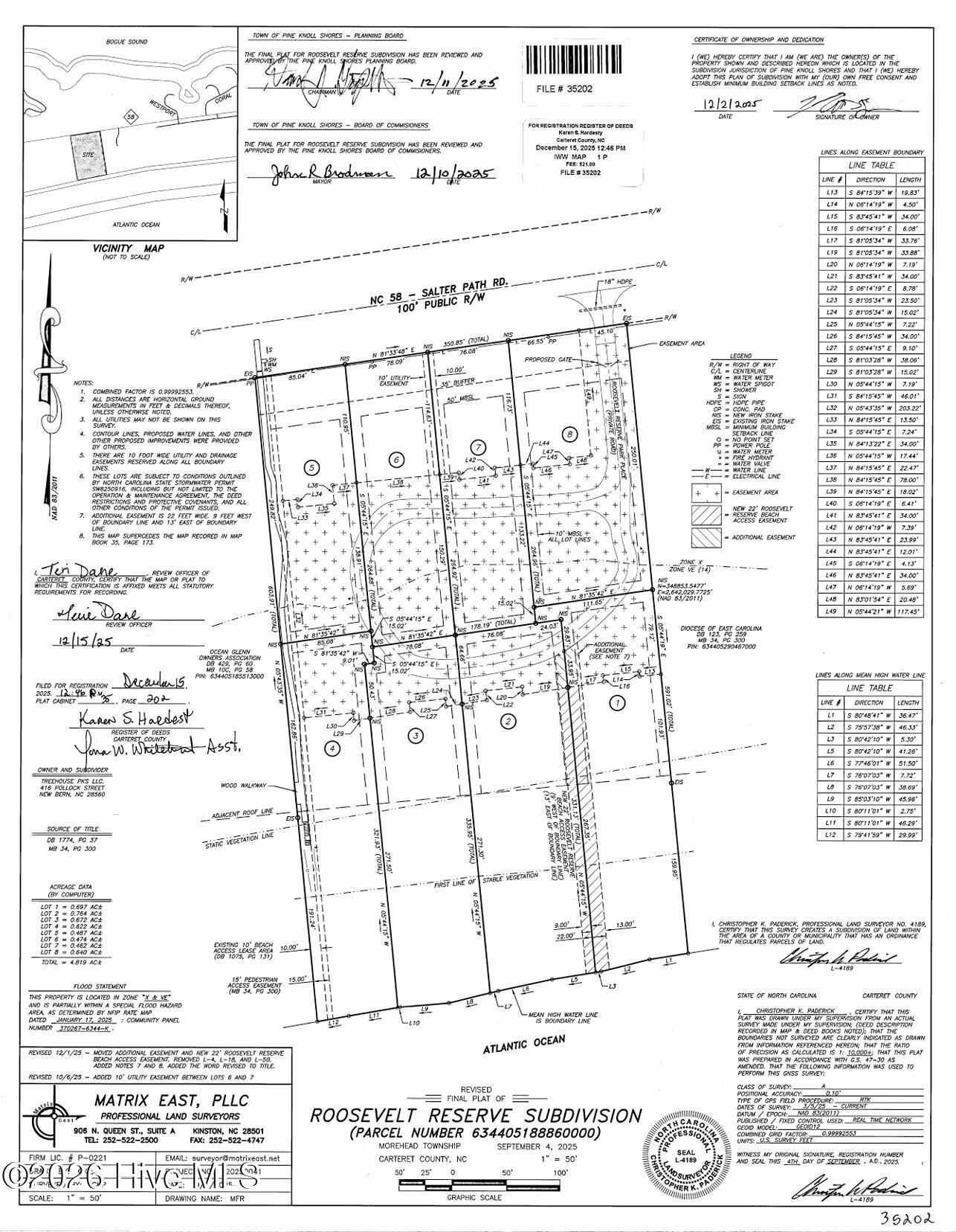
106 Lot 6 6 Roosevelt Reserve Park Avenue
Pine Knoll Shores, NC
Status: Active
Lot #: 6
MLS#: 100561053
Description
Marketing/Public Remarks: One of the Crystal Coast's most extraordinary coastal settings is now being offered--exclusively--for those envisioning a private retreat unlike anything else on the coast. Once held by the Roosevelt family and believed to have been strolled by Theodore Roosevelt himself, this historic property offers a rare blend of privacy, natural beauty, and direct access to the Atlantic from its serene setting in Pine Knoll Shores. The second-row homesite is thoughtfully positioned within a gated enclave, just moments from the ocean, and centered around a beautifully preserved private park that will serve as the heart of the community. An eco-friendly paver loop road winds through the property, connecting each homesite and elevating the character of this private coastal offering. With deeded beach access, underground utilities, and septic approvals for 5-10 bedrooms, Roosevelt Reserve offers the flexibility to bring your own builder and design a custom coastal residence--whether as a private retreat or part of a legacy compound to be enjoyed for generations.
Contact Us Today!
"*" indicates required fields










