219 E Ridge Street
Rose Hill, NC
Status: Active
MLS#: 100560719
Description
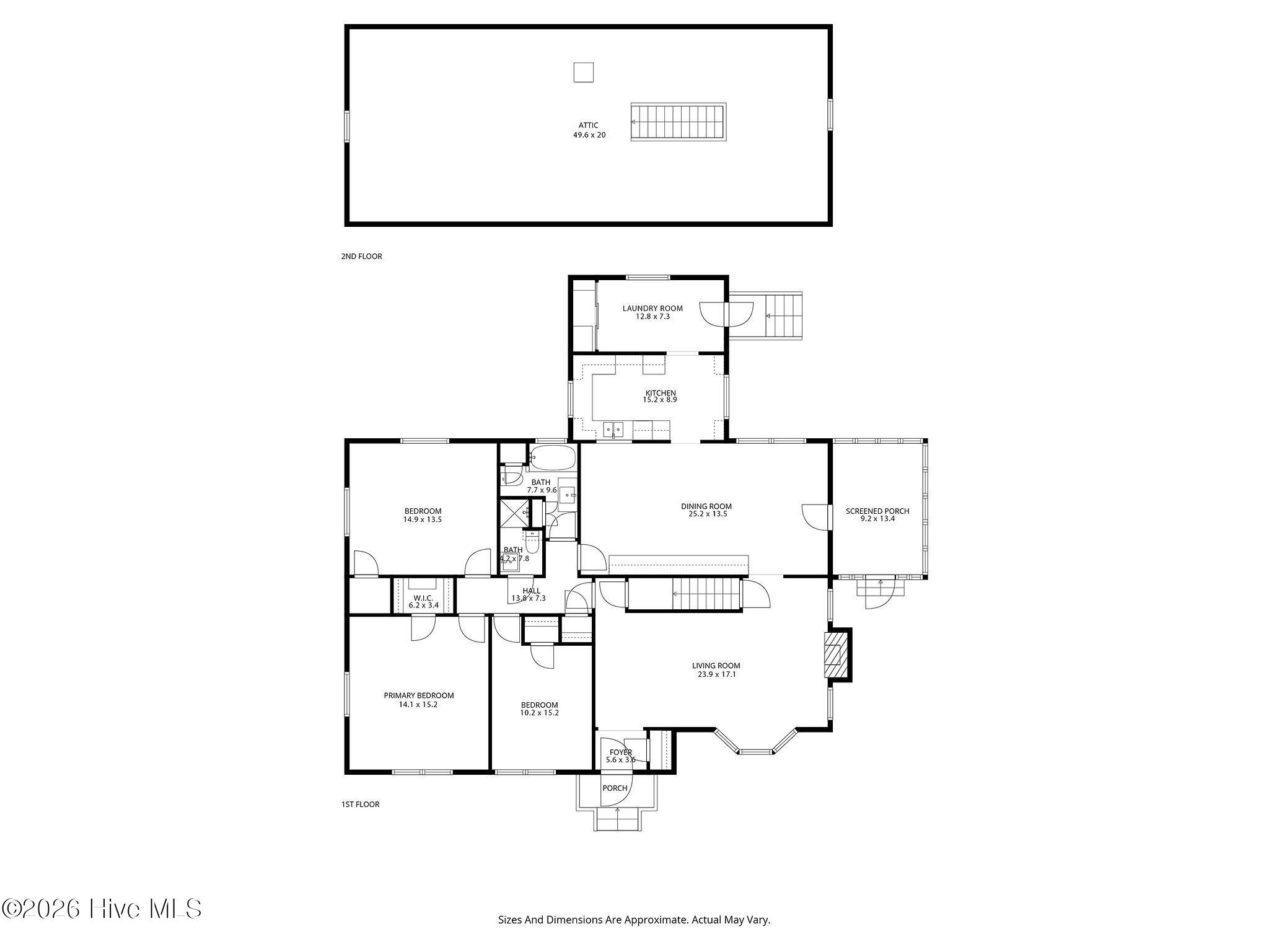
Take a look at this classic 3-bedroom, 2-bath brick home with standout curb appeal and lots of potential. Inside, the bright living room welcomes you with a beautiful bay window that pours natural light into the space. The spacious dining room is ready for holidays, celebrations, and everyday dinners alike, featuring a wall of custom built-in shelving and cabinetry that adds both character and function. Just beyond the eat-in kitchen you'll find the room that will quickly become the most used space in the house. Part pantry, part laundry room, and part back entryway, it's the ultimate drop zone for muddy shoes and shopping bags -- the place where socks mysteriously disappear, laundry baskets pile a little higher than planned, and where the day's worries are left at the door. Step outside and you'll find even more to love. Enjoy quiet mornings bird watching from the gazebo or spend the afternoon tinkering away in the detached workshop. For those with a green thumb, the yard is a true treat -- flower beds are awaiting new growth and blooming camellia bushes scattered throughout the property add beautiful pops of color and timeless Southern character.
Contact Us Today!
"*" indicates required fields



























