419 Campus Drive
Moyock, NC
Status: Active
Lot #: 61
MLS#: 100560295
Description
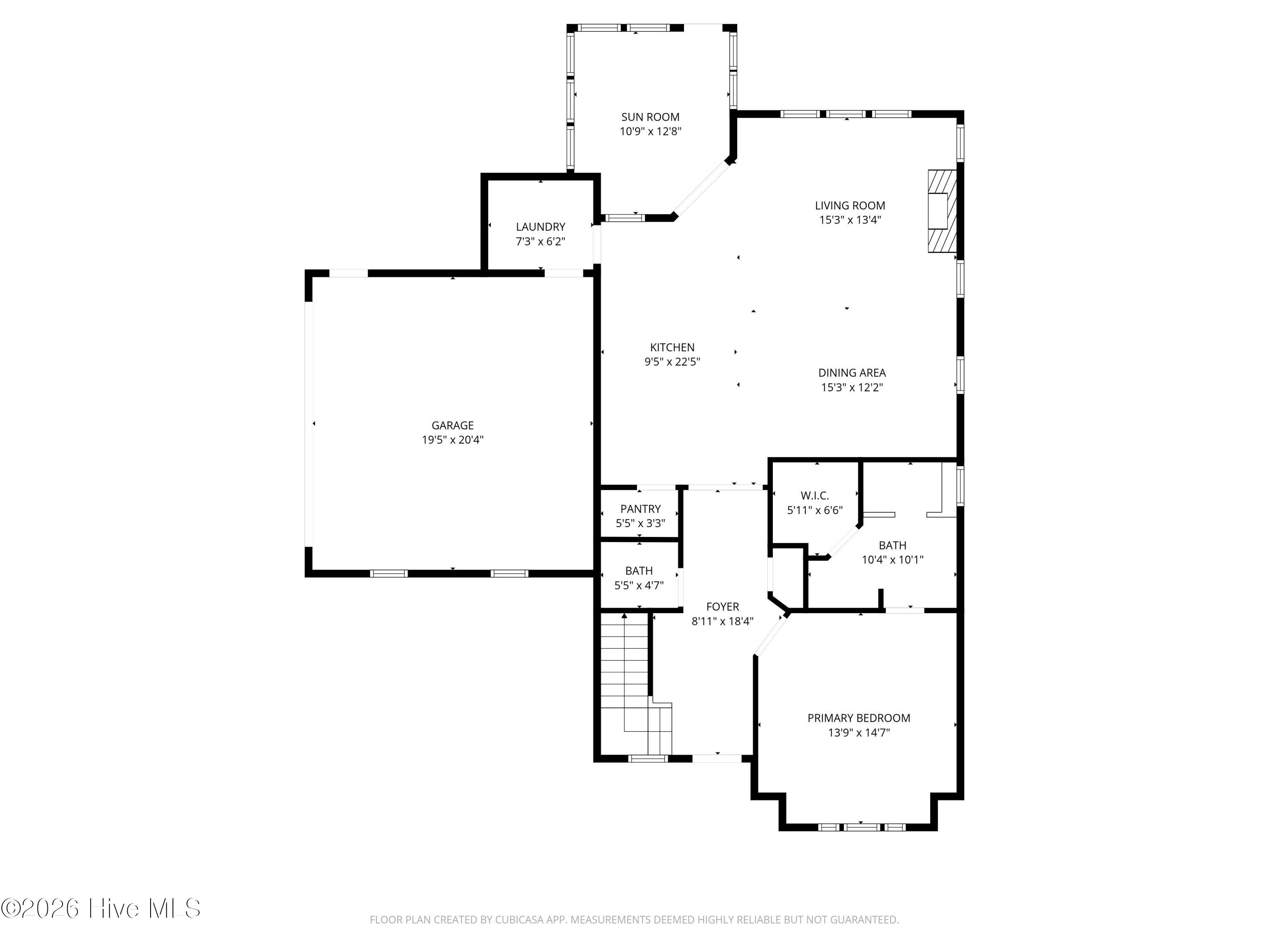
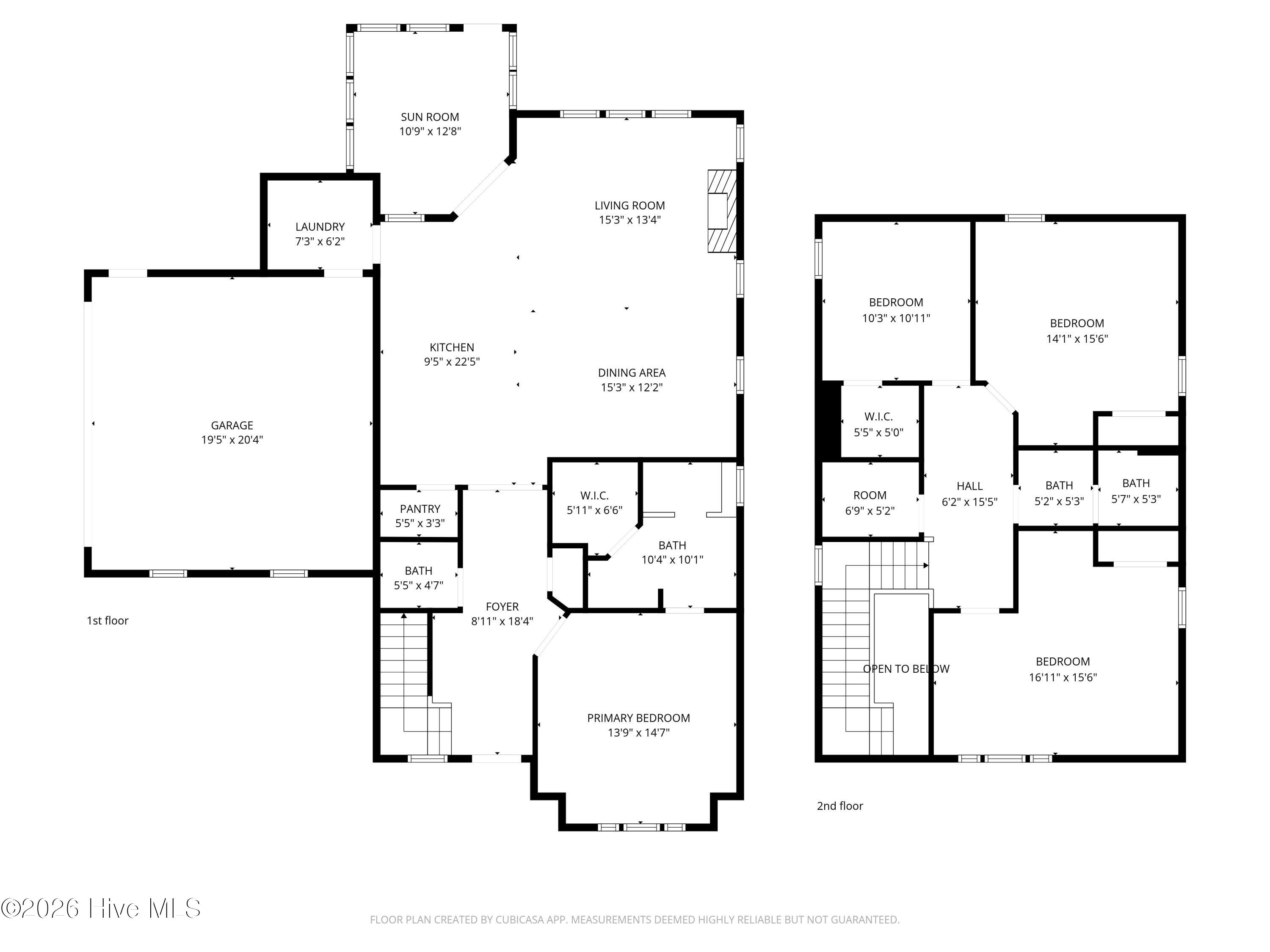
Welcome to this beautifully designed Stephen Alexander, 3-bedroom + flex room cottage farmhouse offering 2.5 baths and 2,410sq. ft. of thoughtfully crafted living space. Large primary suite located on the first floor with attached bath and walk-in closet. Featuring hardwood floors throughout, this home showcases quality craftsmanship with elegant trim details and a bright open-concept floor plan perfect for everyday living and entertaining. The spacious kitchen is the heart of the home, highlighted by a large island, ample cabinetry, and seamless flow into the dining and living areas. A versatile flex room provides the perfect space for a home office, playroom, or guest room. Enjoy year-round relaxation in the all-season porch equipped with a mini-split system, allowing comfort in every season. Step outside to a fully fenced half-acre yard with an expanded patio, ideal for outdoor gatherings, gardening, or simply enjoying the peaceful surroundings. Located in the sought-after neighborhood of Waterleigh. This home offers the perfect blend of charm, space, and privacy while still being close to local amenities. Including the new Tulls Creek Elementary School opening school year 2026
Contact Us Today!
"*" indicates required fields

























































