Savannah, GA
Status: Active
MLS#: SA353280
Description
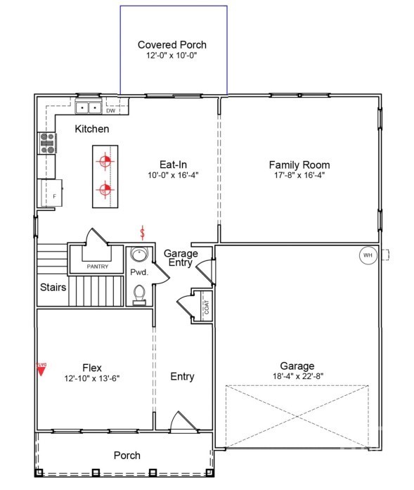
The Russell is a versatile two-story home featuring four bedrooms and two-and-one-half bathrooms, with options to expand up to five bedrooms and four full baths. A flexible space just off the entry provides the perfect area for a home office, formal dining room, or additional living space. The open-concept kitchen includes a large island and spacious pantry and flows seamlessly into the eat-in area and great room, ideal for entertaining and everyday living. Upstairs, all bedrooms surround a spacious loft, creating a comfortable secondary living area. The primary suite features dual walk-in closets and an en-suite bathroom with an oversized linen closet and private water closet. Secondary bedrooms each include walk-in closets, and the laundry room is conveniently located nearby. Optional features include guest suites, additional bedrooms, or expanded bathroom layouts for added flexibility.
Contact Us Today!
"*" indicates required fields


























