Brunswick, GA
Status: Active
MLS#: SA347296
Description
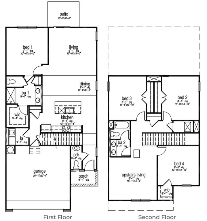
Coming soon! Welcome to The Lakes at North Glynn in Brunswick, Georgia just minutes from shops, schools, and coastal attractions. The Lakes at North Glynn is an amenity-rich community with a planned swimming pool and open-air pavilion for residents to enjoy. Sidewalk-lined streets make it easy to walk to nearby schools and the North Glynn Recreation Complex across the street complete with ball fields, tennis and pickleball courts, skate park, dog park, fishing lake, and walking trails. The Manning plan features a spacious, open floorplan with a chef’s kitchen, large central quartz island, and stainless-steel appliances. The kitchen opens to the dining area and a generous family room with sliding door access to the back patio perfect for indoor-outdoor living and entertaining. The primary suite is conveniently located on the main level and boasts a double vanity bath, large walk-in shower, and a huge walk-in closet. A convenient laundry room is located just off the two-car garage for everyday ease. Home is under construction. Pictures, photographs, colors, features, and sizes are for illustration purposes only and will vary from the home as built. Photos are not of the subject home. More information on programs and options are available for this home.
Contact Us Today!
"*" indicates required fields








































