Savannah, GA
Status: Active
MLS#: SA342382
Description
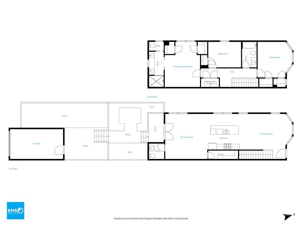
Built in 2021 by JAK Builders, this luxury Savannah townhome for sale offers the perfect blend of historic charm and modern construction in the highly sought-after Victorian District—just steps from the iconic Forsyth Park. Ideally located in one of Savannah's most vibrant neighborhoods, this home provides easy access to top-rated restaurants, cafés, boutique shopping, and downtown attractions.Great location for students attending Savannah College of Art and Design (SCAD), with convenient proximity to multiple campus buildings.This Victorian District townhome features soaring ceilings, reclaimed heart pine floors, and custom woodwork, delivering timeless Southern character with upscale finishes. The open-concept floor plan is ideal for entertaining, showcasing a gourmet kitchen with quartz countertops, custom cabinetry, a gas range, and premium stainless steel appliances. Bright living and dining areas create a seamless flow for modern Savannah living. The spacious primary suite includes a spa-like bathroom, while two additional bedrooms and a full bath offer flexibility for guests, a home office, or rental potential. Outdoor living is enhanced by a private courtyard with a shaded pergola—perfect for relaxing or entertaining in downtown Savannah. Completing the property is a rare detached garage—an invaluable and highly sought-after feature in downtown Savannah, where off-street parking is a true luxury. Combining historic character, modern comforts, and an unbeatable location near Forsyth Park, this home delivers an elevated Savannah living experience and stands out as a unique opportunity in the heart of the city.
Contact Us Today!
"*" indicates required fields








































