Savannah, GA
Status: Active
MLS#: SA342272
Description
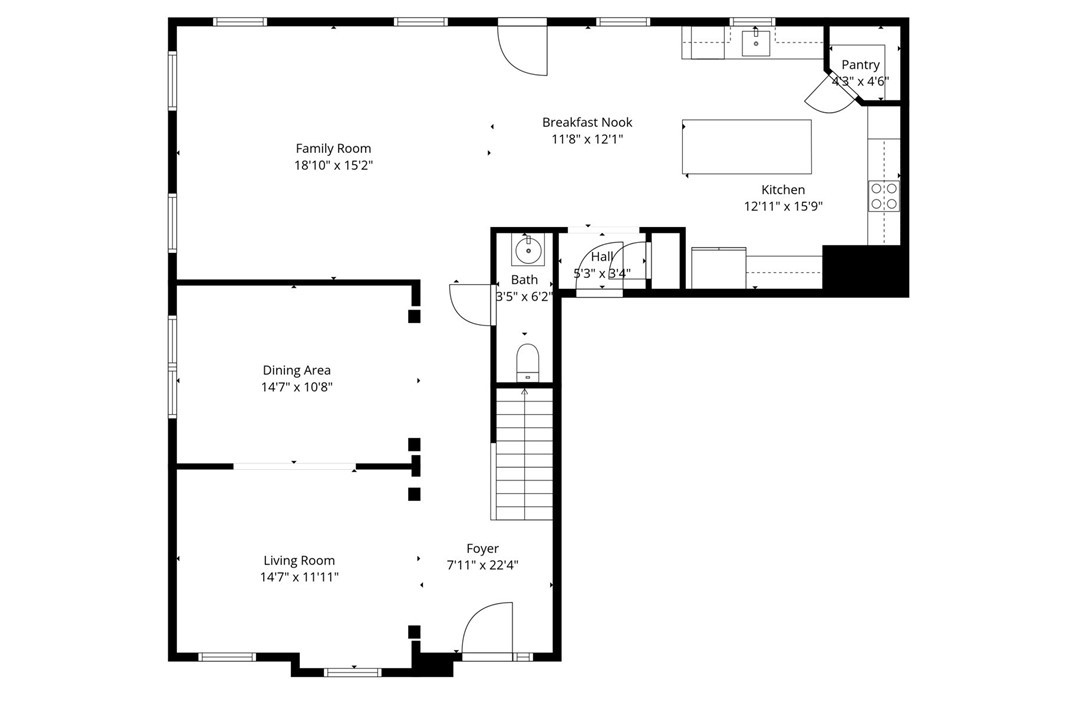
SELLER OFFERING $10,000 BUYER INCENTIVE!!! Welcome to this stunning 4 bed, 3.5 bath two-story home in the stately Highland Falls community at The Highlands. Perfectly situated on a large cul-de-sac lot with four mature palm trees, this home offers style and comfort throughout. Step inside to a bright open floor plan featuring durable LVP flooring, designer lighting, and elegant trim details. The formal living room provides flexible space for an office, while the formal dining room shines with wainscoting and a coffered ceiling. The gourmet kitchen features a large island, stainless steel appliances, granite counters, tiled backsplash, double wall ovens, cooktop, built-in microwave, high-tech refrigerator, and farmhouse sink overlooking the backyard. Upstairs includes an open loft/bonus room and a luxurious owner’s suite with separate closets and vanities, and a tiled tub and shower. Enjoy a screened porch, fenced yard, irrigation system, and 2-car garage—all minutes from Pooler Parkway, Gulfstream, I-95, and I-16.
Contact Us Today!
"*" indicates required fields





































































