Athens, GA
Status: Active
MLS#: CL341559
Description
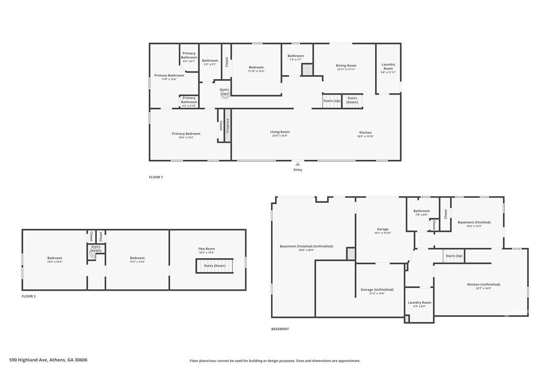
Some photos have been virtually staged, including select interior spaces and portions of the landscaping, to illustrate completed renderings and potential design possibilities once construction is finalized. While a pool is not currently planned or included, virtual images are provided to help visualize the exceptional backyard space should a future owner wish to add one. This 5 BR / 4 BA brick home is currently under construction and available for showings, offering buyers a unique opportunity to explore remaining customization options prior to completion. Once finished, the property will feature a new roof, new poured driveway, new windows, and refreshed landscaping, all thoughtfully designed to enhance curb appeal and functionality. Tucked away on a quiet street in the heart of 5 Points, the home sits on a fenced lot with a peaceful creek along the rear of the property and ample room for future outdoor living expansion. A screened porch extends from the dining room with elevated views of the backyard, while Trex-style steps provide convenient ground access. Inside, the completely remodeled interior offers generous living spaces with built-in cabinetry, quartz countertops, subway tile backsplash, and elegant arched doorways. The spa-like primary bath features a soaking tub and a walk-in dual shower. The basement is currently unfinished; however, photos and renderings illustrate the potential for a future apartment-style layout, including flex space, kitchen, bedroom, living area, bathroom, and laundry, with both interior and exterior access—ideal for an in-law suite, guest quarters, or rental opportunity. All square footage and measurements are approximate and provided as a courtesy. Buyer is advised to independently verify any information that is material to their decision.
Contact Us Today!
"*" indicates required fields






























































