Laura D
Description
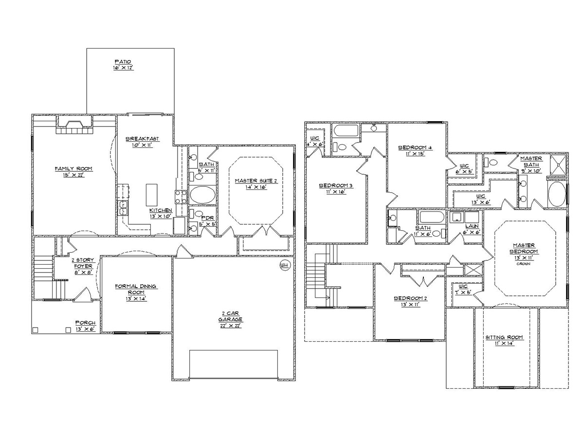
The Laura D is spacious with approximately 3053 heated square feet. With 5 bedrooms and 4.5 bathrooms, you won’t be disappointed. You will be welcomed inside the home when you step into the two story foyer. The first floor has a formal dining room, family room with fireplace, kitchen with island, ample cabinets and breakfast nook, that leads out to the back patio. The first floor has the first of two primary suites. This first floor primary suite has a closet and en suite bathroom. The half bath completes the first floor. As you head upstairs you will be met by bedrooms 3, 4, and 5, each nicely sized that share 2 hall way bathrooms. The laundry room is located down the hall just before entering the 2nd primary suite. This primary suite will be sure to amaze with it’s trey ceiling, sitting room, 2 walk in closet and large en-suite bathroom with double vanities, a water closet, tub, and standing shower. Let’s not forget the two car garage for storage or your vehicles. Buyers to verify schools.
Builder reserves the right to alter floor plan, specifications and features. Similar photos, videos, and cut sheets are for the purpose of floor plan layout only. Similar photos and videos may include upgrades and/or features and selections that are no longer available and may not be included in your specific home. Included features vary from community to community. Buyers or Buyers Agents should confirm included features and selections available with the listing agent and view the included features sheet for the development before presenting an offer. Please note. Arches are no longer a standard feature.
Floor Plan
Contact Us Today!
"*" indicates required fields






















































































